
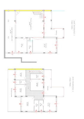
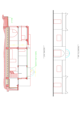
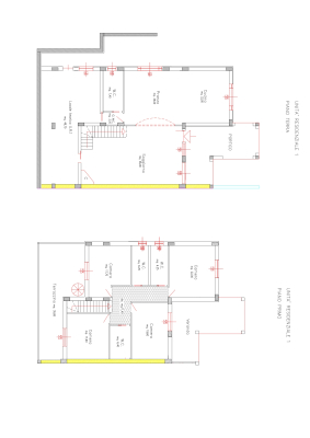
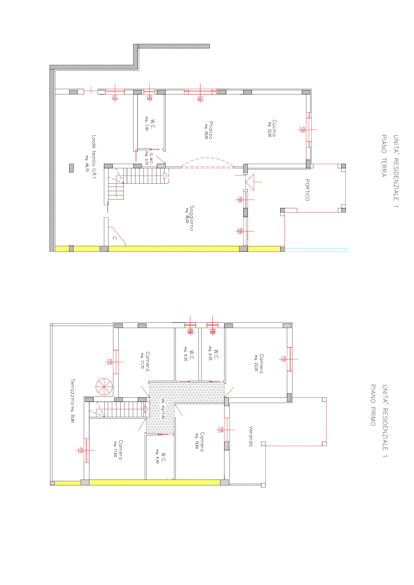
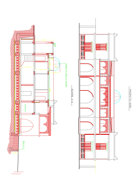
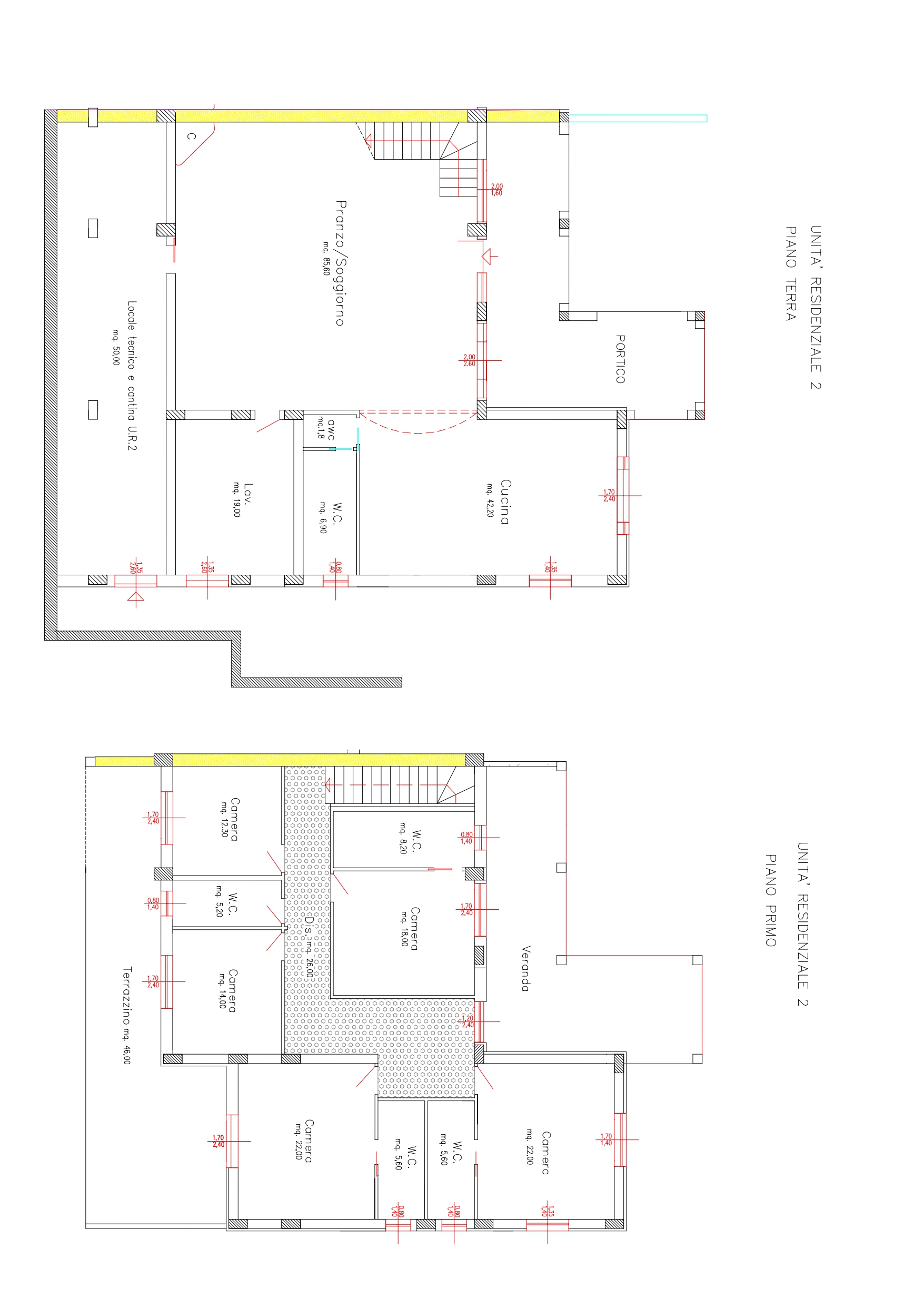
A pochi chilometri dal centro di Patti, dalle spiagge di Marina e Mongiove, e da Tindari, in prossimità del casello autostradale, grande fabbricato allo stato rustico in fase di costruzione con terreno circostante di mq 6.000,00. Il lotto di terreno è semi pianeggiante, soleggiato e gode di un panorama che spazia dalle Isole Eolie ai Nebrodi; l'accesso dalla SS113 è garantito da uno scenografico viale alberato. La zona è un'oasi di pace, immersa in in un uliveto e costellata da alberi da frutto tipicamente mediterranei. Il progetto del fabbricato (realizzate le fondazioni ed i pilastri del piano terra) prevede un piano terra composto da un'ampia zona living soggiorno/pranzo, cucina, due bagni, due camere con bagni, portico, locale tecnico, ed un piano primo composto da 6 camere, tutte con bagno, veranda panoramica, terrazzi, e dispone di 2 accessi, uno lato mare al piano terra ed uno lato monte al piano primo. Viste le notevoli dimensioni, le caratteristiche e la possibilità di realizzare una piscina ed aree attrezzate nel vasto terreno, la villa si predispone ad un uso turistico/ricettivo o è l'ideale per chi è alla ricerca di una dimora importante ed esclusiva. Possibilità di variare il progetto per realizzare una casa bifamiliare: ciascuna delle due unità è disposta su due piani e dispone di ingresso indipendente, verande e giardino/terreno di pertinenza esclusiva di mq 4.000,00. Disponibilità di una impresa edile per ultimare lo stabile.